VILLA DI TESTA CON GIARDINO TAVERNA 2 BOX

VILLA DI TESTA CON GIARDINO TAVERNA 2 BOX

In vendita
Villetta schiera
San Paolo d'Argon
359.000 €
Descrizione
PASSIONECASA IMMOBILIARE Propone in vendita
A SAN PAOLO D'ARGON :

VENDITA DIRETTA SENZA PROVVIGIONI :

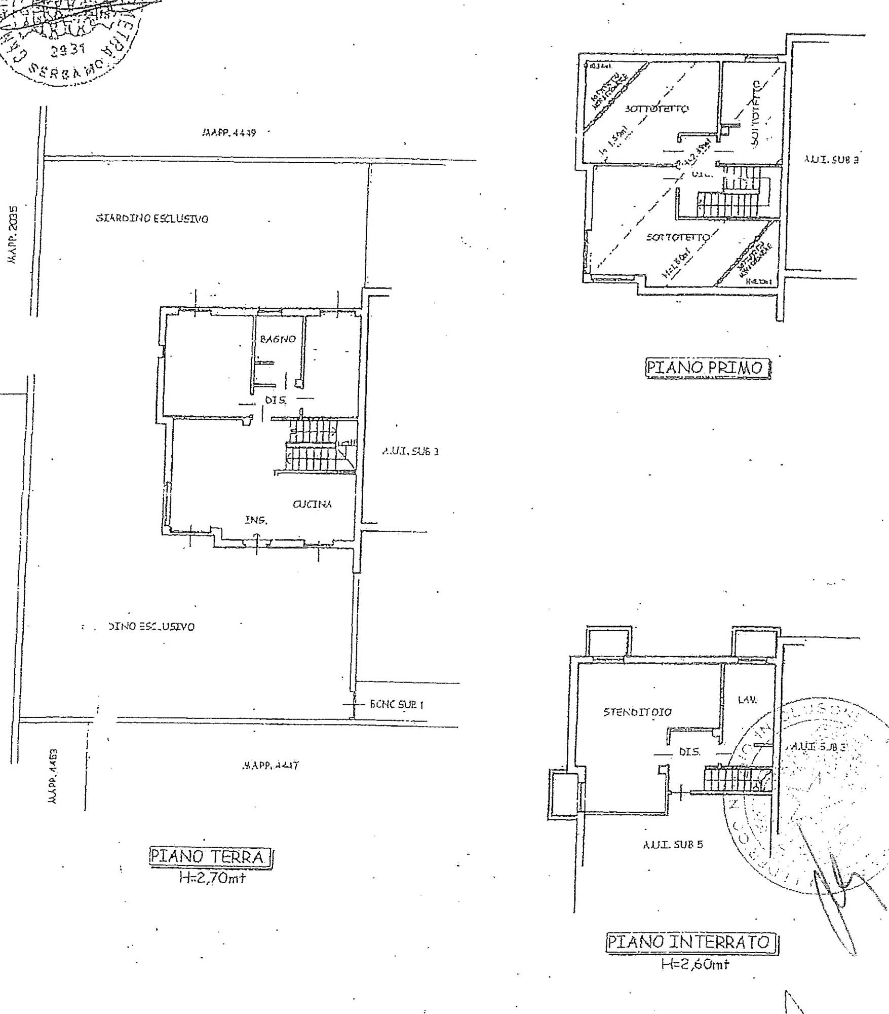
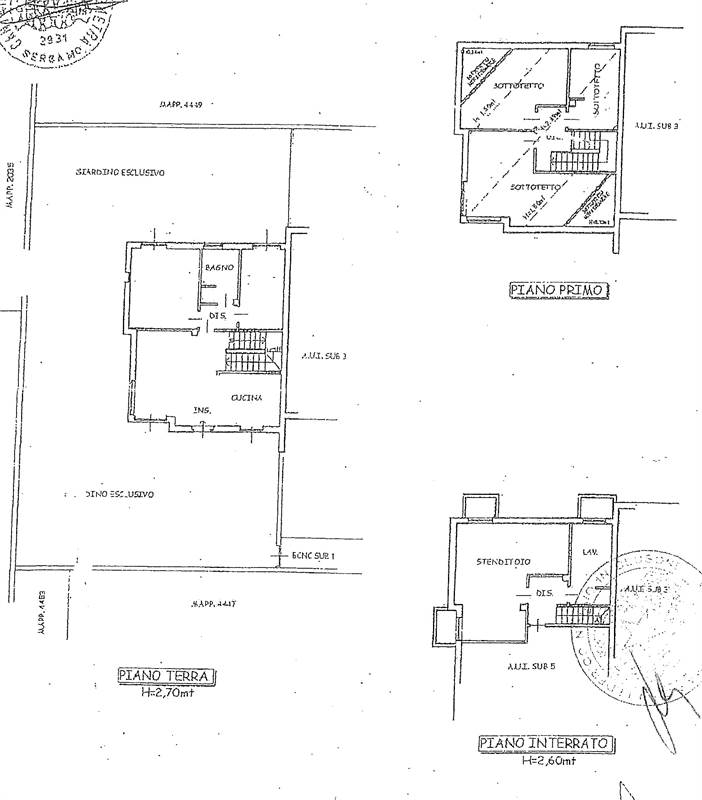
VILLA DI TESTA LIBERA SU TRE LATI, in contesto di solo 3 famiglie, ingresso indipendente, giardino su tre lati di 180 mq.
Al piano terra troviamo un soggiorno vivibile, cucina separata, 2 camere ed un bagno, al piano primo collegato da ampia scala in muratura abbiamo sottotetto molto alto, con travi a vista in legno, 2 ampi vani ed un bagno.
Infine al piano interrato troviamo : taverna con zona cucina, salotto con camino, lavanderia e bagno.
Collegati internamente 2 box singoli e ampia cantina di 30 mq.
L' immobile e' in perfette condizioni, ha riscaldamento autonomo a pavimento, infissi doppio vetro in legno, aria condizionata etc......
La villetta non ha né amministratore né spese condominiali in quanto in un contesto di 3 villette.
IMMOBILE LIBERO IL 31 OTTOBRE 2026

VALUTIAMO IL RITIRO IN PERMUTA DEL VS. USATO, ACQUISTANDOLO DIRETTAMENTE.

Classe Energetica D 99,11 Kwh/anno

PREZZO 359.000 EURO

RIFERIMENTO FERDINANDO SALEMME

3470580019

https://passionecasaseriate.it/it/

https://www.instagram.com/passionecasadisalemme/
https://www.facebook.com/search/top/?q=PASSIONECASA

www.passionecasaseriate.it

https://www.facebook.com/search/top/?q=PASSIONECASA

www.passionecasaseriate.it

https://www.instagram.com/passionecasadisalemme/
Caratteristiche principali
Codice:
359SANPAOLO
Città:
San Paolo d'Argon
Categoria:
Villetta schiera
Locali:
5
Camere:
4
Bagni:
3
Mq:
170
Box:
2
Mq Box:
50
Mq Giardino:
180
Piano:
Terra
Anno:
2007
Classe energetica:
D
99,11
Stato Immobile:
Ottimo
Lati Liberi:
3
Giardino:
Privato
Tipo Soggiorno:
Salone
Tipo Cucina:
Abitabile
Riscaldamento:
Autonomo
Tipo Riscaldam.:
Caldaia
Tipo Impianto:
Pavimento
Fonte Energetica:
Metano
Acqua Calda:
Autonoma
Raffrescamento:
Split
Infissi:
Legno Doppio Vetro
Serramenti:
Ottimo
Accesso Disabili:
Nessuna Barriera
Accessori
Aria Condizionata
Doppi Vetri
Fibra Ottica
Ingresso Indipendente
Porta Blindata
Mappa
Via Montessori, 5 - San Paolo d'Argon (BG)
Video
Planimetrie
Qr Code
Cookie preference